Fernando
Images are for illustration purposes only and may not reflect standard inclusions.

Fernando Kit Home

About this Kit

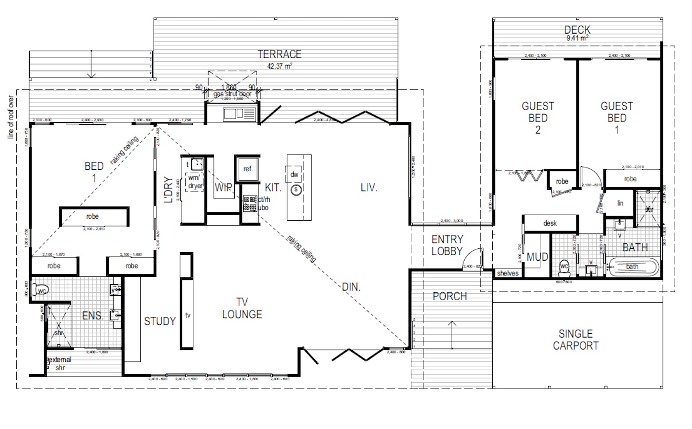
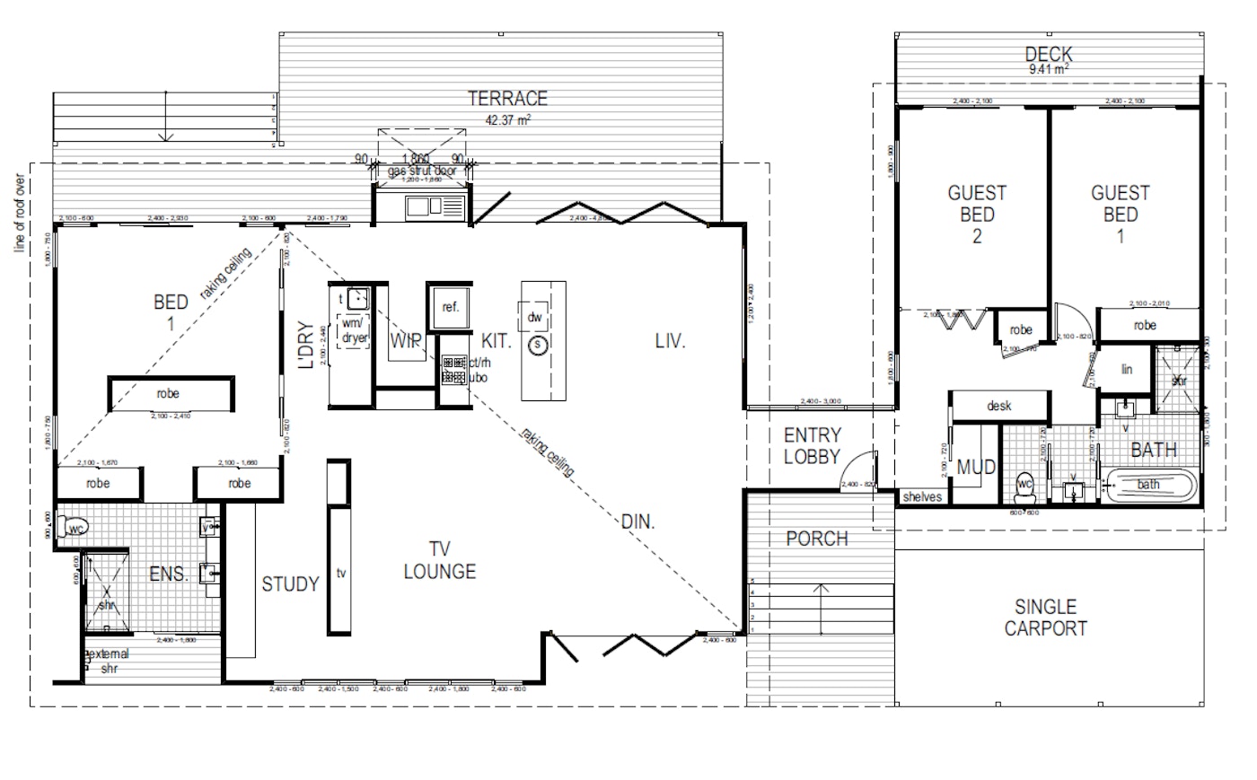
Livability and a cool summer breeze. Designer pitched rooflines with window highlights create a strong visual appeal plus a feeling of space in this distinctively designed 3 bedroom home.  Featuring open plan living opening up to both the front and rear covered outdoor areas to let the summer breeze in and give you extended views while inside the home. Plus a purpose built front verandah that brings your attention to the entry while complimenting the street appeal of this home. This smart 3 bedroom design features a generous master bedroom complete with walk through robe ensuite and sliding door access to the outside deck area. And on the western wing there’s 2 bedrooms each with their own sliding door access to a rear deck area. The Fernando is a home of distinction so send us a message and you can be enjoying the summer breeze in yours too.

Elevations

Drawings

Build Your Own Fernando Kit Home

3 Bed
2 Bath

Total Kit Size: 239m²

Internal: 183m²
External: 56m²
Dimensions: 23.5m × 13.3m
Trusted BlueScope Steel Frames
Step-by-step Guide to Get Started
Build on Your Schedule
Australian Based Support
We Ensure You Get Council Approval

Kit starts from:

A$177,384

Get Quote

Purchase Blueprint

Detailed construction PDF

Download the detailed construction blueprint PDF for this plan.

Blueprint price:

A$17.99

Customise Your Kit

Explore our premium options below and generate an instant PDF quote tailored to your specifications.

Floor System

This is the base for your kit. Concrete for the slab or footings is not included in the kit price.

▶️ Watch our video on sub floors

Ceiling Height

How high would you like your ceiling?

The average ceiling height is currently 2.7m. Higher ceilings add a sense of openness and luxury.

Cladding

What do you want to cover your walls?

▶️ Watch our video on cladding types

Get Your Quote

Sent straight to your inbox

Fernando

3 bed • 2 bath • 239m²

Standard kit price includes standard inclusions — add customisations below:

$0
$0
$0
$0
$0
Estimated Kit Cost inc. GST

$177,384 AUD

Slab/footings not included. Pricing shown is for Australia and includes GST.

Your Details

Related Kit Homes

These related plans have the same number of bedrooms and bathrooms as the plan you're looking at.