Skip to content
Abby
Images are for illustration purposes only and may not reflect standard inclusions.

Abby Kit Home

About this Kit

The Abby is perfectly suited to couples looking to enjoy open plan living with space to accommodate and entertain guests. Featuring two bedrooms and separated bathroom/toilet the design offers a spacious living area opening onto a generous patio. Ideal for BBQs in the summer and dinner parties in the cooler months.

Elevations

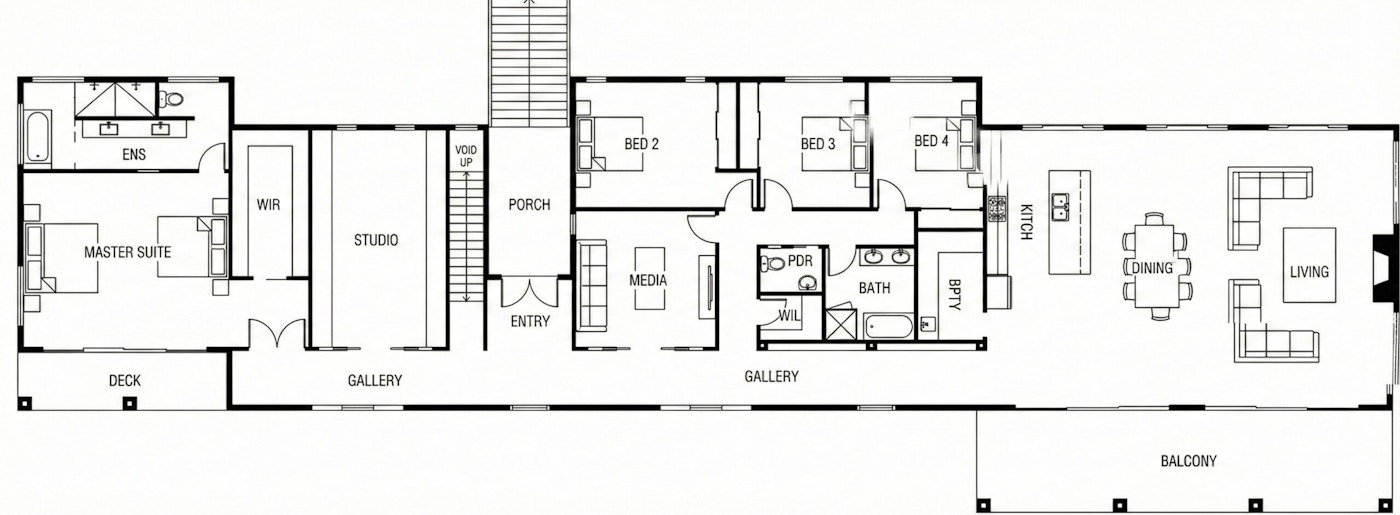
Drawings

Build Your Own Abby Kit Home

4 Bed
2.5 Bath

Total Kit Size: 451m²

Internal: 393m²
Dimensions: 40.3m × 12.6m
Trusted BlueScope Steel Frames
Step-by-step Guide to Get Started
Build on Your Schedule
Australian Based Support
We Ensure You Get Council Approval

Kit starts from:

A$380,995

Get Quote

Purchase Blueprint

Detailed construction PDF

Download the detailed construction blueprint PDF for this plan.

Blueprint price:

A$17.99

Customise Your Kit

Explore our premium options below and generate an instant PDF quote tailored to your specifications.

A Sub Floor system is included in the price of this kit due to the nature of the design.

Ceiling Height

How high would you like your ceiling?

The average ceiling height is currently 2.7m. Higher ceilings add a sense of openness and luxury.

Cladding

What do you want to cover your walls?

▶️ Watch our video on cladding types

Get Your Quote

Sent straight to your inbox

Abby

4 bed • 2.5 bath • 451m²

Standard kit price includes standard inclusions — add customisations below:

$0
$0
$0
$0
Estimated Kit Cost inc. GST

$380,995 AUD

Slab/footings not included. Pricing shown is for Australia and includes GST.

Your Details

Related Kit Homes

These related plans have the same number of bedrooms and bathrooms as the plan you're looking at.