Skip to content
Chase
Images are for illustration purposes only and may not reflect standard inclusions.

Chase Kit Home

About this Kit

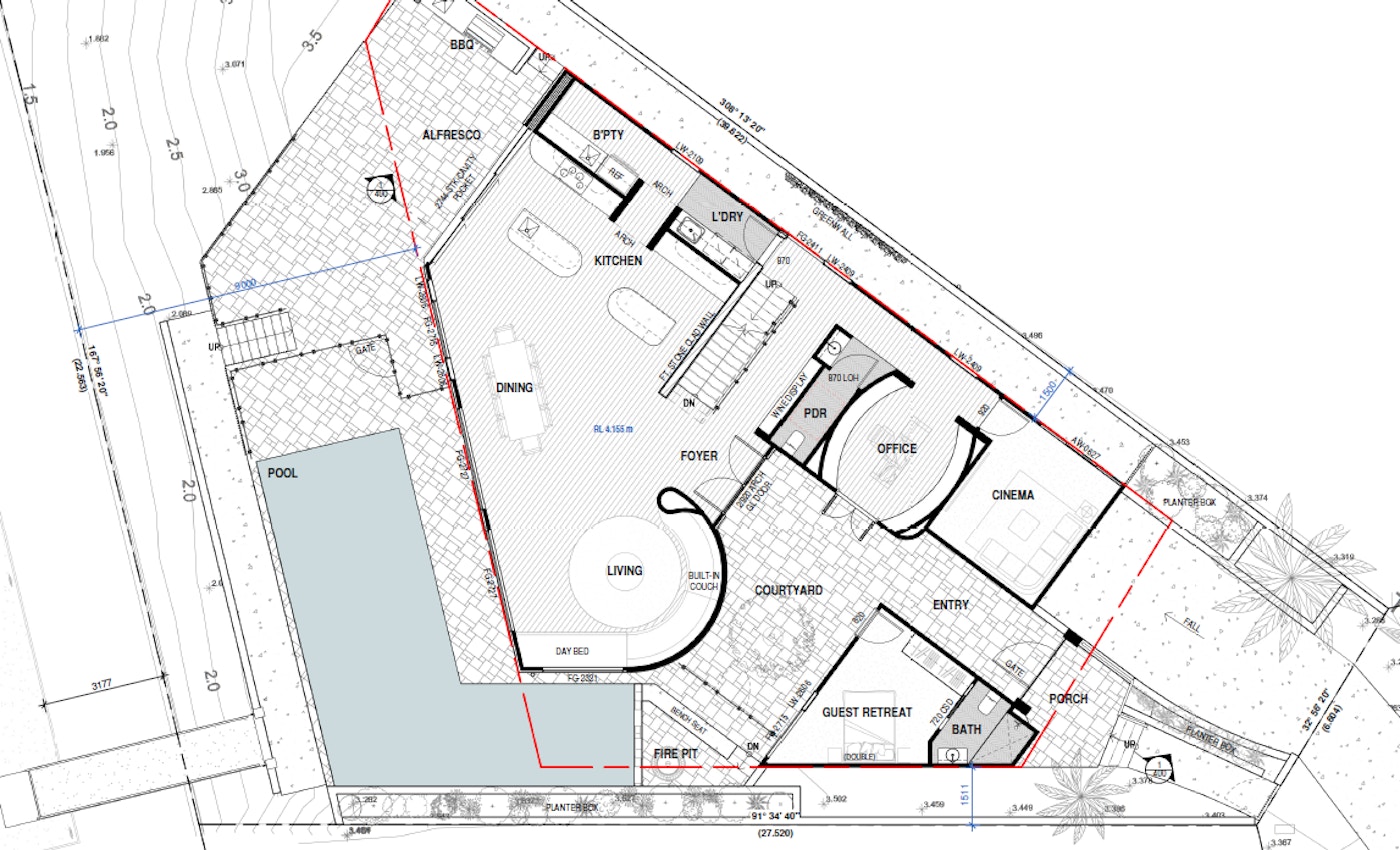
The Chase Kit Home offers a spacious layout with 4 bedrooms and 3.5 bathrooms making it ideal for families seeking comfort and style. The total kit size is 562m² with 460m² of internal space and 102m² of external areas. Built using durable BlueScope steel frames the design can be customized to meet specific preferences including ceiling heights cladding options and cyclone ratings. It’s perfect for those looking to build a modern efficient home with the flexibility to suit their location and lifestyle needs.

Elevations

Drawings

Build Your Own Chase Kit Home

4 Bed
3.5 Bath

Total Kit Size: 562m²

Internal: 459m²
External: 103m²
Trusted BlueScope Steel Frames
Step-by-step Guide to Get Started
Build on Your Schedule
Australian Based Support
We Ensure You Get Council Approval

Kit starts from:

A$380,495

Get Quote

Customise Your Kit

Explore our premium options below and generate an instant PDF quote tailored to your specifications.

A Sub Floor system is included in the price of this kit due to the nature of the design.

Ceiling Height

How high would you like your ceiling?

The average ceiling height is currently 2.7m. Higher ceilings add a sense of openness and luxury.

Cladding

What do you want to cover your walls?

▶️ Watch our video on cladding types

Get Your Quote

Sent straight to your inbox

Chase

4 bed • 3.5 bath • 562m²

Standard kit price includes standard inclusions — add customisations below:

$0
$0
$0
$0
Estimated Kit Cost inc. GST

$380,495 AUD

Slab/footings not included. Pricing shown is for Australia and includes GST.

Your Details

Related Kit Homes

These related plans have the same number of bedrooms and bathrooms as the plan you're looking at.