Skip to content
Cooks Beach
Images are for illustration purposes only and may not reflect standard inclusions.

Cooks Beach Kit Home

About this Kit

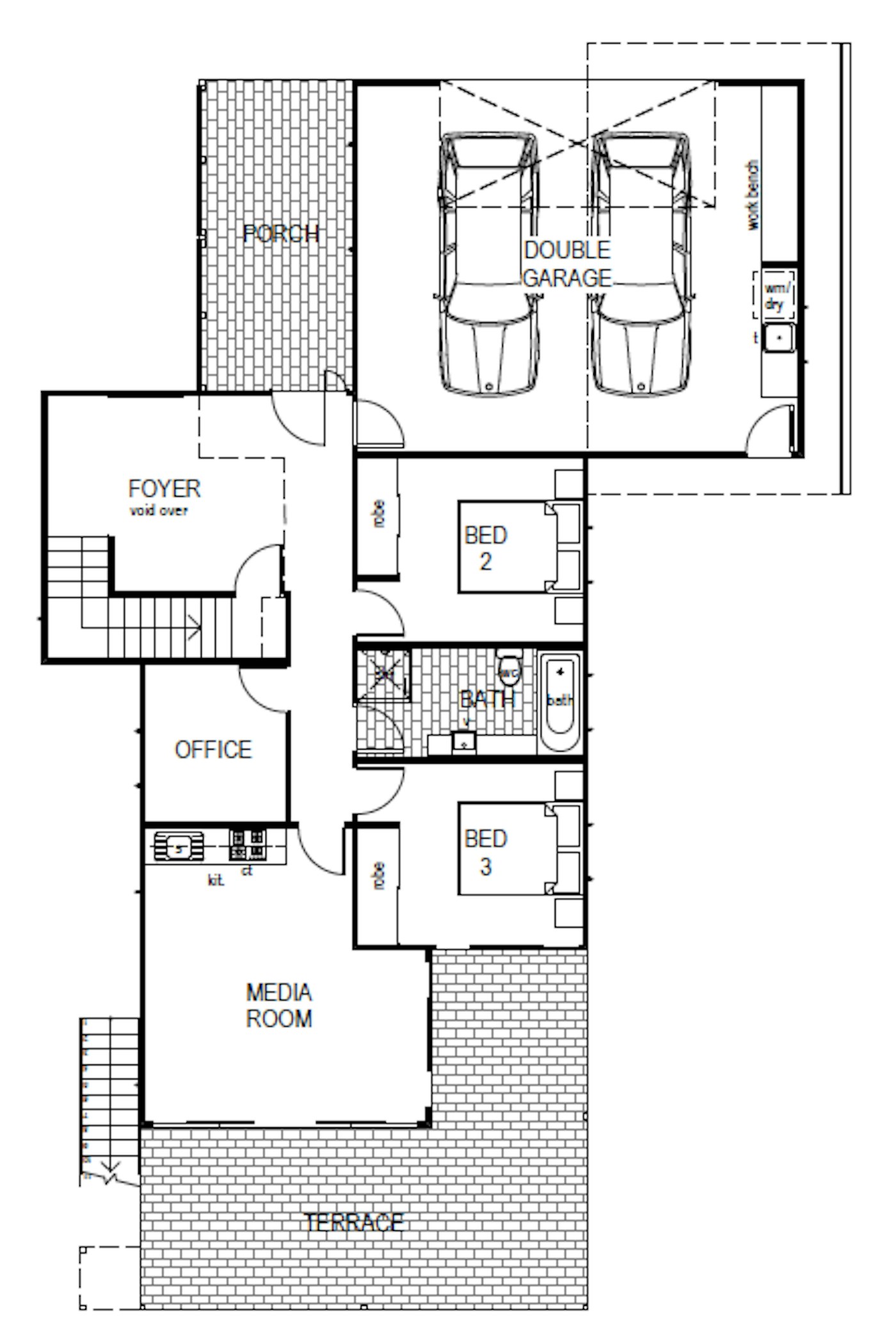
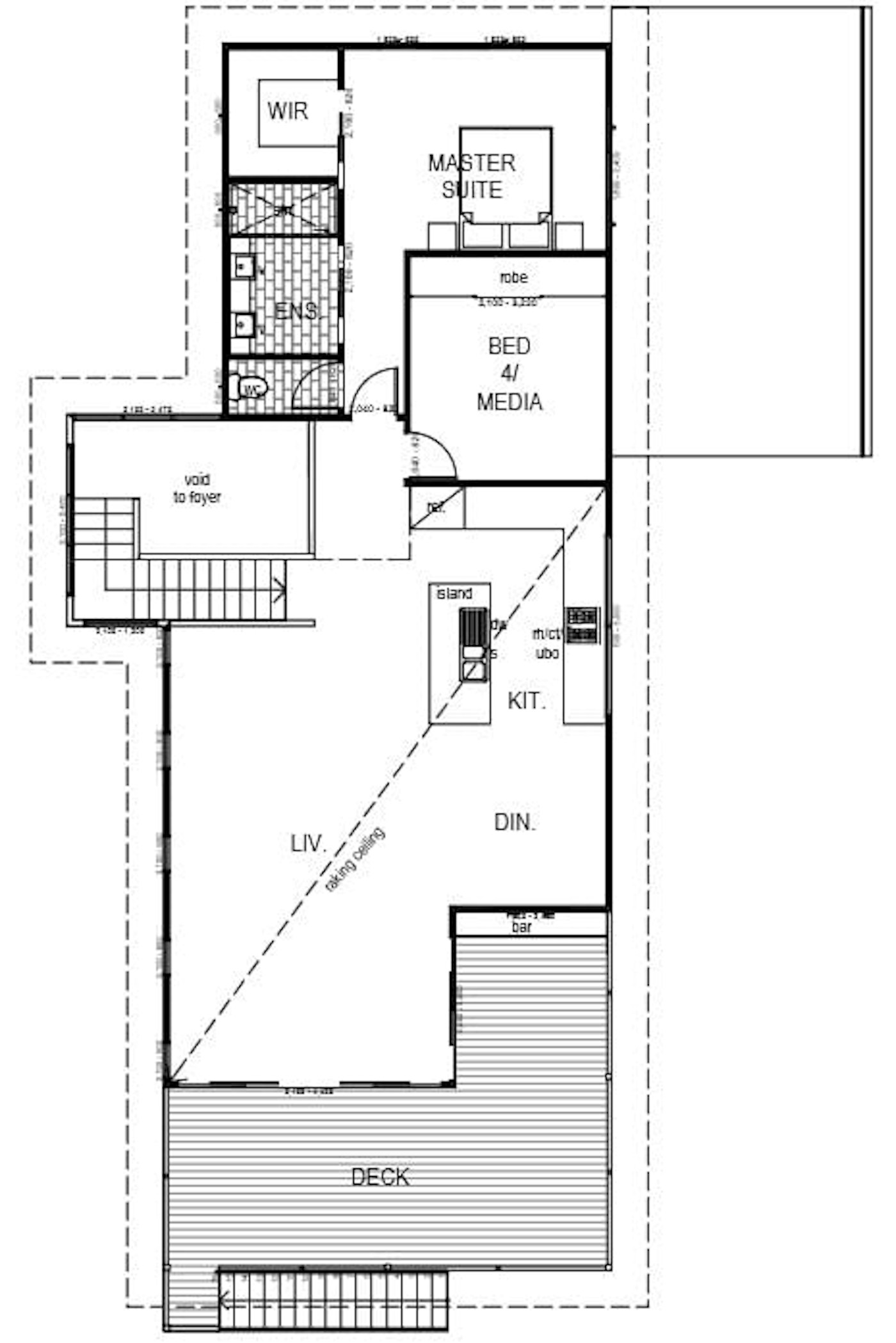
The cooks beach design boasts over 250M2 of internal living big enough for large families looking for a touch of modern architecture all wrapped up in a very functional and easy to build design. With loads of natural light entering both the master suite and living areas on the top floor as well as the lower floor bedrooms & media room - living in the cooks beach will remind you of summer all year round. Expansive living dinging and entertaining areas complete the design to give the cooks the wow factor award.

Elevations

Drawings

Build Your Own Cooks Beach Kit Home

4 Bed
2 Bath

Total Kit Size: 325m²

Internal: 251m²
External: 74m²
Dimensions: 20.2m × 12.4m
Trusted BlueScope Steel Frames
Step-by-step Guide to Get Started
Build on Your Schedule
Australian Based Support
We Ensure You Get Council Approval

Kit starts from:

A$232,508

Get Quote

Purchase Blueprint

Detailed construction PDF

Download the detailed construction blueprint PDF for this plan.

Blueprint price:

A$17.99

Customise Your Kit

Explore our premium options below and generate an instant PDF quote tailored to your specifications.

Floor System

This is the base for your kit. Concrete for the slab or footings is not included in the kit price.

▶️ Watch our video on sub floors

Ceiling Height

How high would you like your ceiling?

The average ceiling height is currently 2.7m. Higher ceilings add a sense of openness and luxury.

Cladding

What do you want to cover your walls?

▶️ Watch our video on cladding types

Get Your Quote

Sent straight to your inbox

Cooks Beach

4 bed • 2 bath • 325m²

Standard kit price includes standard inclusions — add customisations below:

$0
$0
$0
$0
$0
Estimated Kit Cost inc. GST

$232,508 AUD

Slab/footings not included. Pricing shown is for Australia and includes GST.

Your Details

Related Kit Homes

These related plans have the same number of bedrooms and bathrooms as the plan you're looking at.