Skip to content
Epic
Images are for illustration purposes only and may not reflect standard inclusions.

Epic Kit Home

About this Kit

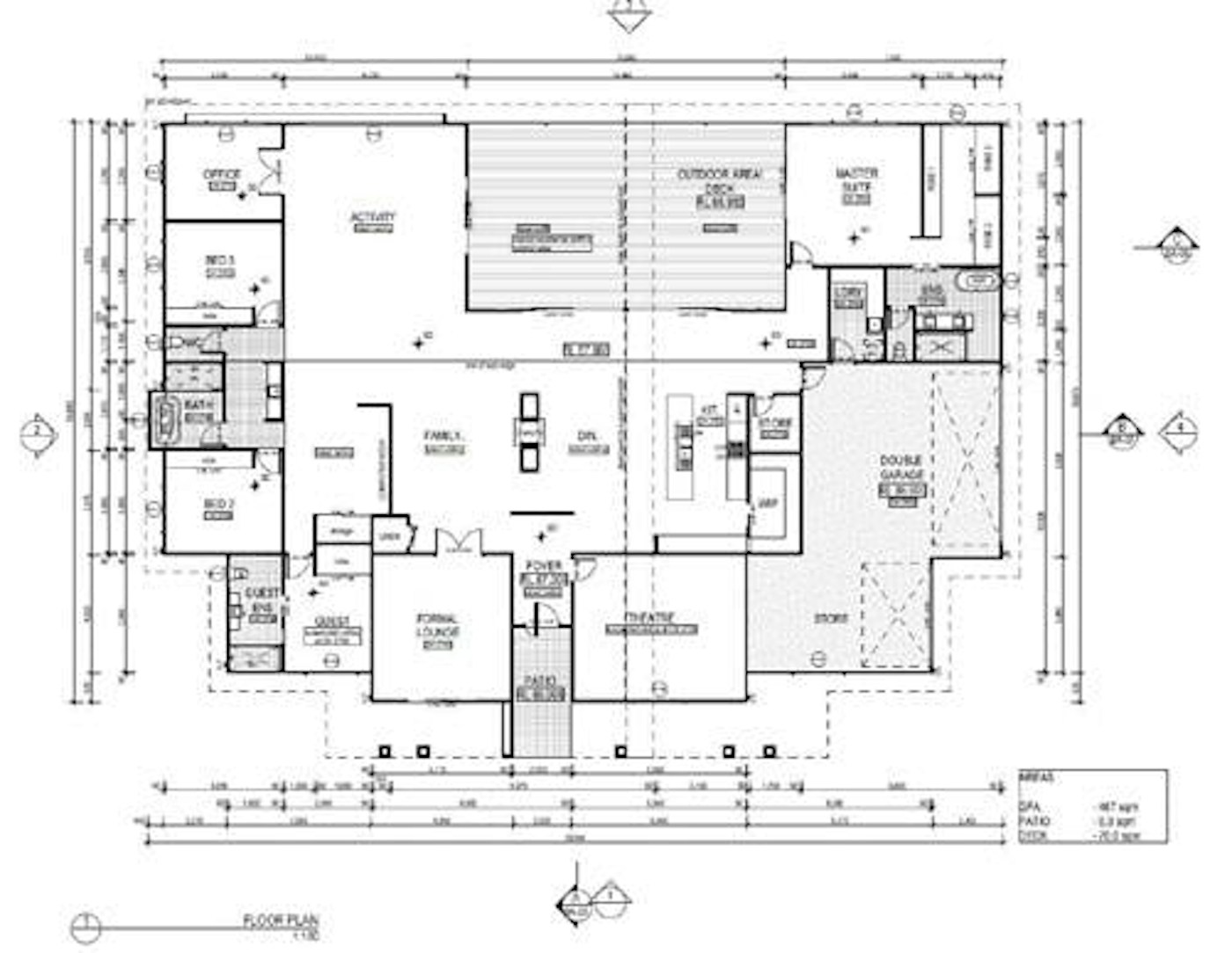
The home that lives up to its name Epic! This truly epic home features everything you could ever wish for on one level. With an architecturally designed pitched roofline and high ceilings this home opens up and keeps on giving. Featuring a dedicated home theatre room that’s been designed for the serious movie buff plus a formal lounge for unwinding in. Love to cook too? Great there’s an open plan kitchen with a walk in pantry plus separate storeroom and an island bench for you to get creative in. This home even has an activity room if you fancy a game of snooker before heading to the outside deck area to check on the barbeque. The Epic has 3 large bedrooms plus a guest bedroom with its own ensuite a study and computer nook and so much more. Let’s not forget about the internal double garage plus huge workshop area or third garage. So if you want that feeling of excitement when you think about coming home the Epic is for you. Send us a message and make it a reality today.

Elevations

Drawings

Build Your Own Epic Kit Home

5 Bed
3 Bath

Total Kit Size: 545m²

Internal: 467m²
External: 79m²
Dimensions: 29.4m × 19.8m
Trusted BlueScope Steel Frames
Step-by-step Guide to Get Started
Build on Your Schedule
Australian Based Support
We Ensure You Get Council Approval

Kit starts from:

A$341,814

Get Quote

Purchase Blueprint

Detailed construction PDF

Download the detailed construction blueprint PDF for this plan.

Blueprint price:

A$17.99

Customise Your Kit

Explore our premium options below and generate an instant PDF quote tailored to your specifications.

Floor System

This is the base for your kit. Concrete for the slab or footings is not included in the kit price.

▶️ Watch our video on sub floors

Ceiling Height

How high would you like your ceiling?

The average ceiling height is currently 2.7m. Higher ceilings add a sense of openness and luxury.

Cladding

What do you want to cover your walls?

▶️ Watch our video on cladding types

Get Your Quote

Sent straight to your inbox

Epic

5 bed • 3 bath • 545m²

Standard kit price includes standard inclusions — add customisations below:

$0
$0
$0
$0
$0
Estimated Kit Cost inc. GST

$341,814 AUD

Slab/footings not included. Pricing shown is for Australia and includes GST.

Your Details

Related Kit Homes

These related plans have the same number of bedrooms and bathrooms as the plan you're looking at.