Skip to content
FORTITUDE - Per Unit
Images are for illustration purposes only and may not reflect standard inclusions.

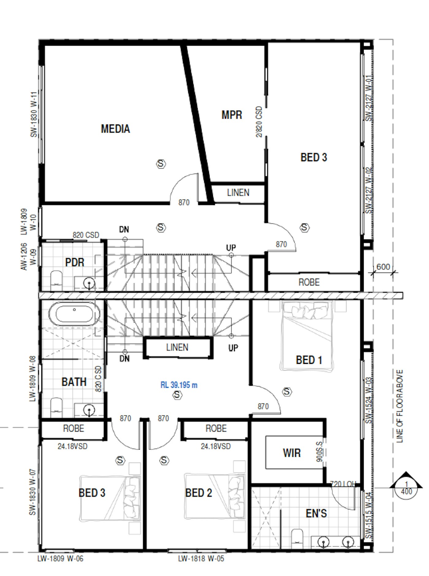
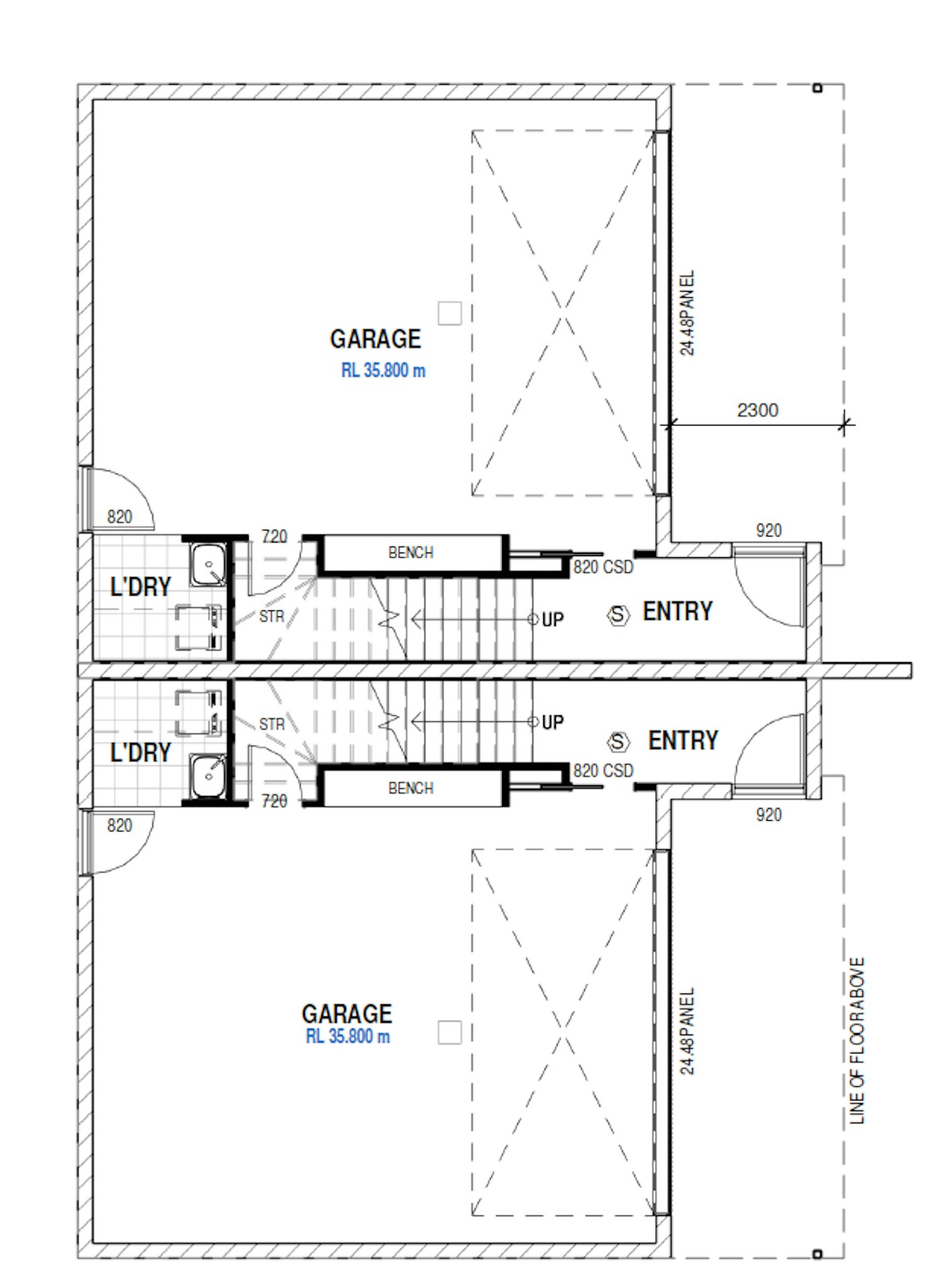
FORTITUDE - Per Unit Kit Home

About this Kit

Note: Pricing is based on a single side for all Duplex designs.

Elevations

Drawings

Build Your Own FORTITUDE - Per Unit Kit Home

3 Bed
2 Bath

Total Kit Size: 256m²

Internal: 222m²
Dimensions: 15.6m × 10.2m
Trusted BlueScope Steel Frames
Step-by-step Guide to Get Started
Build on Your Schedule
Australian Based Support
We Ensure You Get Council Approval

Kit starts from:

A$206,371

Get Quote

Purchase Blueprint

Detailed construction PDF

Download the detailed construction blueprint PDF for this plan.

Blueprint price:

A$17.99

Customise Your Kit

Explore our premium options below and generate an instant PDF quote tailored to your specifications.

A Sub Floor system is included in the price of this kit due to the nature of the design.

Ceiling Height

How high would you like your ceiling?

The average ceiling height is currently 2.7m. Higher ceilings add a sense of openness and luxury.

Cladding

What do you want to cover your walls?

▶️ Watch our video on cladding types

Get Your Quote

Sent straight to your inbox

FORTITUDE - Per Unit

3 bed • 2 bath • 256m²

Standard kit price includes standard inclusions — add customisations below:

$0
$0
$0
$0
Estimated Kit Cost inc. GST

$206,371 AUD

Slab/footings not included. Pricing shown is for Australia and includes GST.

Your Details

Related Kit Homes

These related plans have the same number of bedrooms and bathrooms as the plan you're looking at.