Skip to content
Hudson
Images are for illustration purposes only and may not reflect standard inclusions.

Hudson Kit Home

About this Kit

The Hudson delivers the latest in architectural design for everyday family living. The upper level provides ample living space with flexibility to use the open plan area in multiple ways. The large master bedroom and two full sized bedrooms open out onto this living area matching the natural flow of a family in their home. Downstairs there are two extra rooms that can be used for whatever your family needs most - a games room home gym office music room. The options are endless!

Elevations

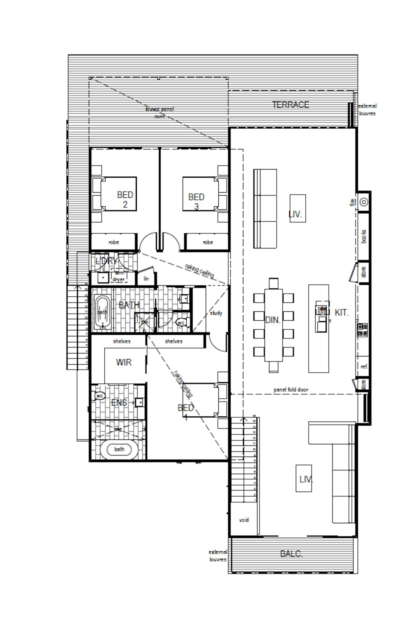
Drawings

Build Your Own Hudson Kit Home

5 Bed
3 Bath

Total Kit Size: 365m²

Internal: 293m²
Dimensions: 21.5m × 12.4m
Trusted BlueScope Steel Frames
Step-by-step Guide to Get Started
Build on Your Schedule
Australian Based Support
We Ensure You Get Council Approval

Kit starts from:

A$260,460

Get Quote

Purchase Blueprint

Detailed construction PDF

Download the detailed construction blueprint PDF for this plan.

Blueprint price:

A$17.99

Customise Your Kit

Explore our premium options below and generate an instant PDF quote tailored to your specifications.

A Sub Floor system is included in the price of this kit due to the nature of the design.

Ceiling Height

How high would you like your ceiling?

The average ceiling height is currently 2.7m. Higher ceilings add a sense of openness and luxury.

Cladding

What do you want to cover your walls?

▶️ Watch our video on cladding types

Get Your Quote

Sent straight to your inbox

Hudson

5 bed • 3 bath • 365m²

Standard kit price includes standard inclusions — add customisations below:

$0
$0
$0
$0
Estimated Kit Cost inc. GST

$260,460 AUD

Slab/footings not included. Pricing shown is for Australia and includes GST.

Your Details

Related Kit Homes

These related plans have the same number of bedrooms and bathrooms as the plan you're looking at.