Skip to content
Kalm
Images are for illustration purposes only and may not reflect standard inclusions.

Kalm Kit Home

About this Kit

The Kalm kit home design by Imagine Kit Homes exudes a sense of tranquility and modern elegance, making it an ideal choice for those seeking a peaceful retreat. The open-plan living area seamlessly integrates the kitchen, dining, and lounge spaces, creating a harmonious flow that’s perfect for relaxed living and entertaining. The design features spacious bedrooms that provide comfort and privacy, with the master suite offering a serene escape. Large windows and sliding doors invite natural light into the home, enhancing its warm and welcoming atmosphere. The Kalm is a stylish and functional design that combines contemporary aesthetics with a calming, comfortable living environment.

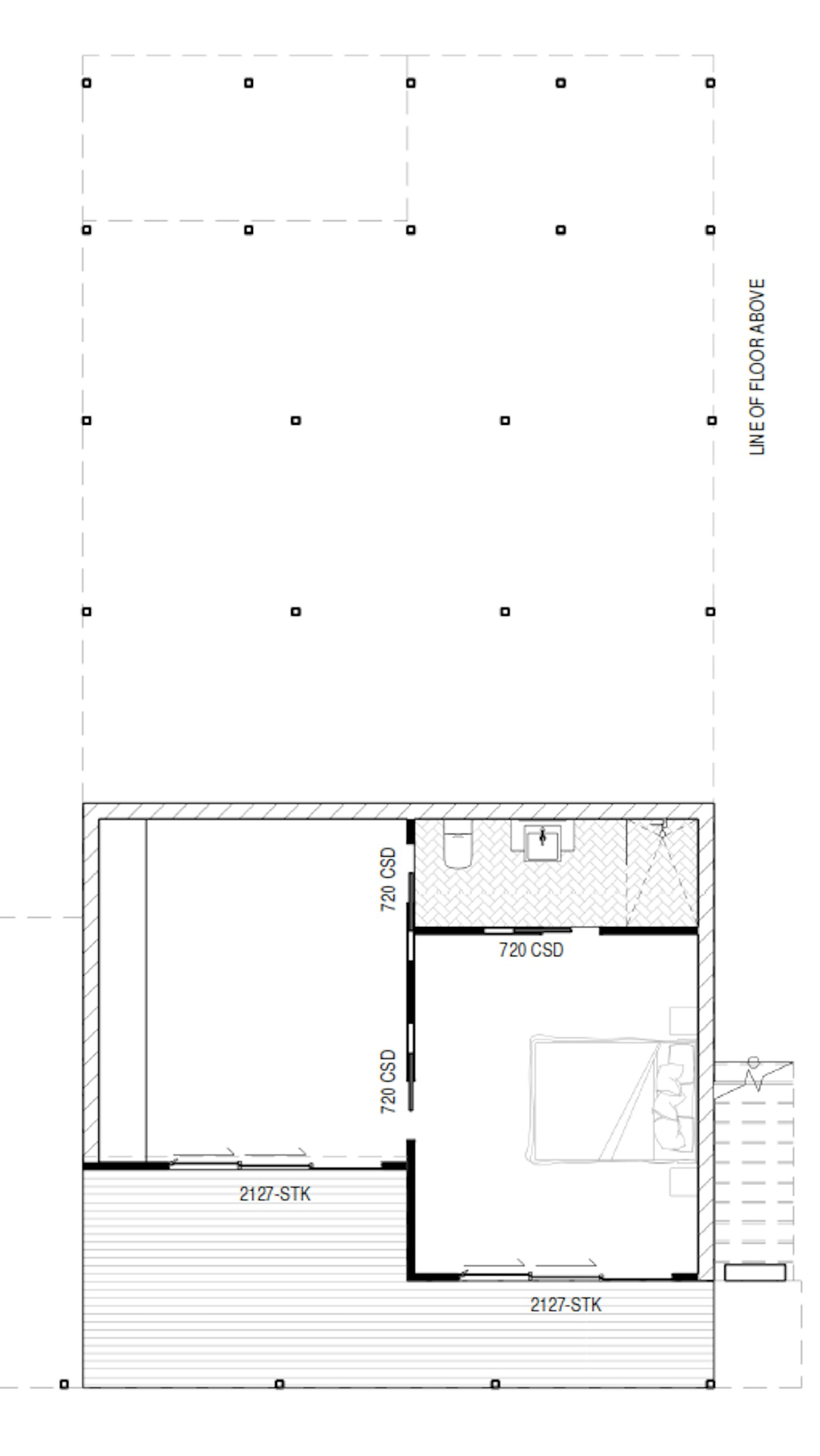
Elevations

Drawings

Build Your Own Kalm Kit Home

3 Bed
2 Bath

Total Kit Size: 244m²

Internal: 186m²
Trusted BlueScope Steel Frames
Step-by-step Guide to Get Started
Build on Your Schedule
Australian Based Support
We Ensure You Get Council Approval

Kit starts from:

A$232,010

Get Quote

Purchase Blueprint

Detailed construction PDF

Download the detailed construction blueprint PDF for this plan.

Blueprint price:

A$17.99

Customise Your Kit

Explore our premium options below and generate an instant PDF quote tailored to your specifications.

A Sub Floor system is included in the price of this kit due to the nature of the design.

Ceiling Height

How high would you like your ceiling?

The average ceiling height is currently 2.7m. Higher ceilings add a sense of openness and luxury.

Cladding

What do you want to cover your walls?

▶️ Watch our video on cladding types

Get Your Quote

Sent straight to your inbox

Kalm

3 bed • 2 bath • 244m²

Standard kit price includes standard inclusions — add customisations below:

$0
$0
$0
$0
Estimated Kit Cost inc. GST

$232,010 AUD

Slab/footings not included. Pricing shown is for Australia and includes GST.

Your Details

Related Kit Homes

These related plans have the same number of bedrooms and bathrooms as the plan you're looking at.