Skip to content
Mcilwain
Images are for illustration purposes only and may not reflect standard inclusions.

Mcilwain Kit Home

About this Kit

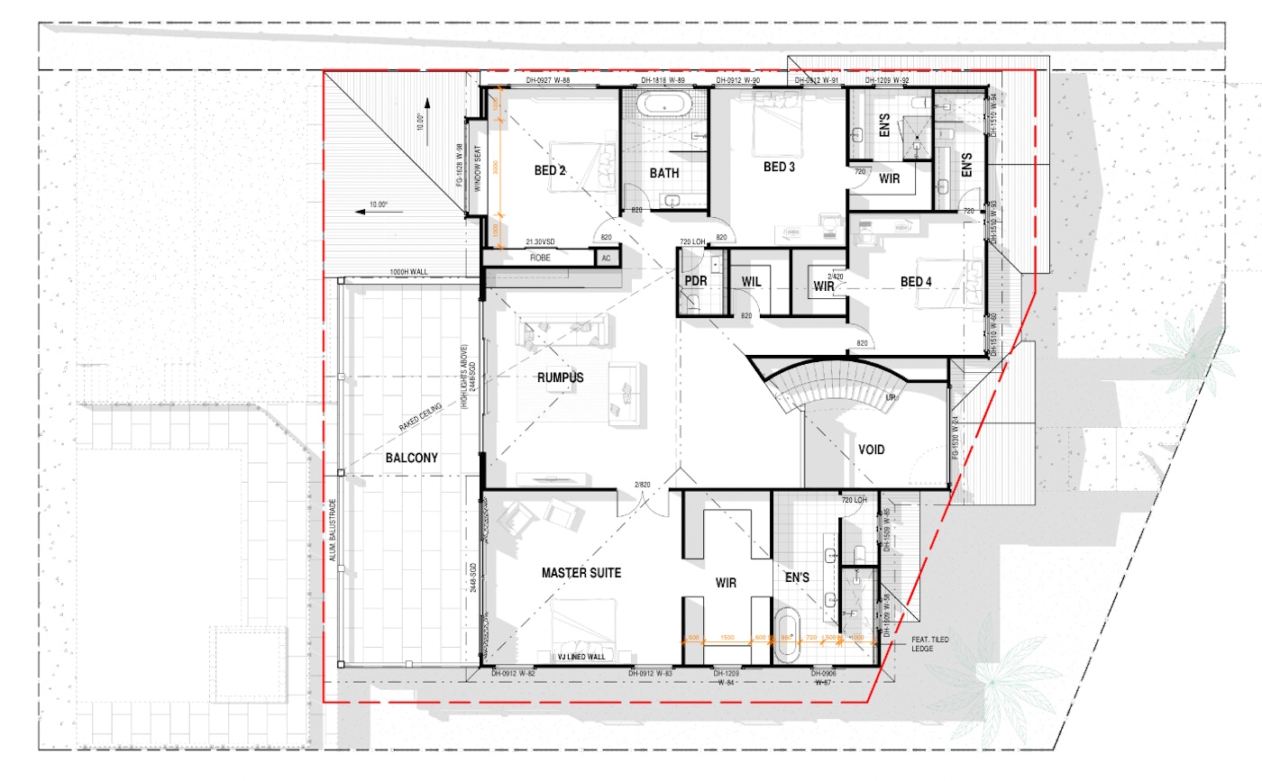
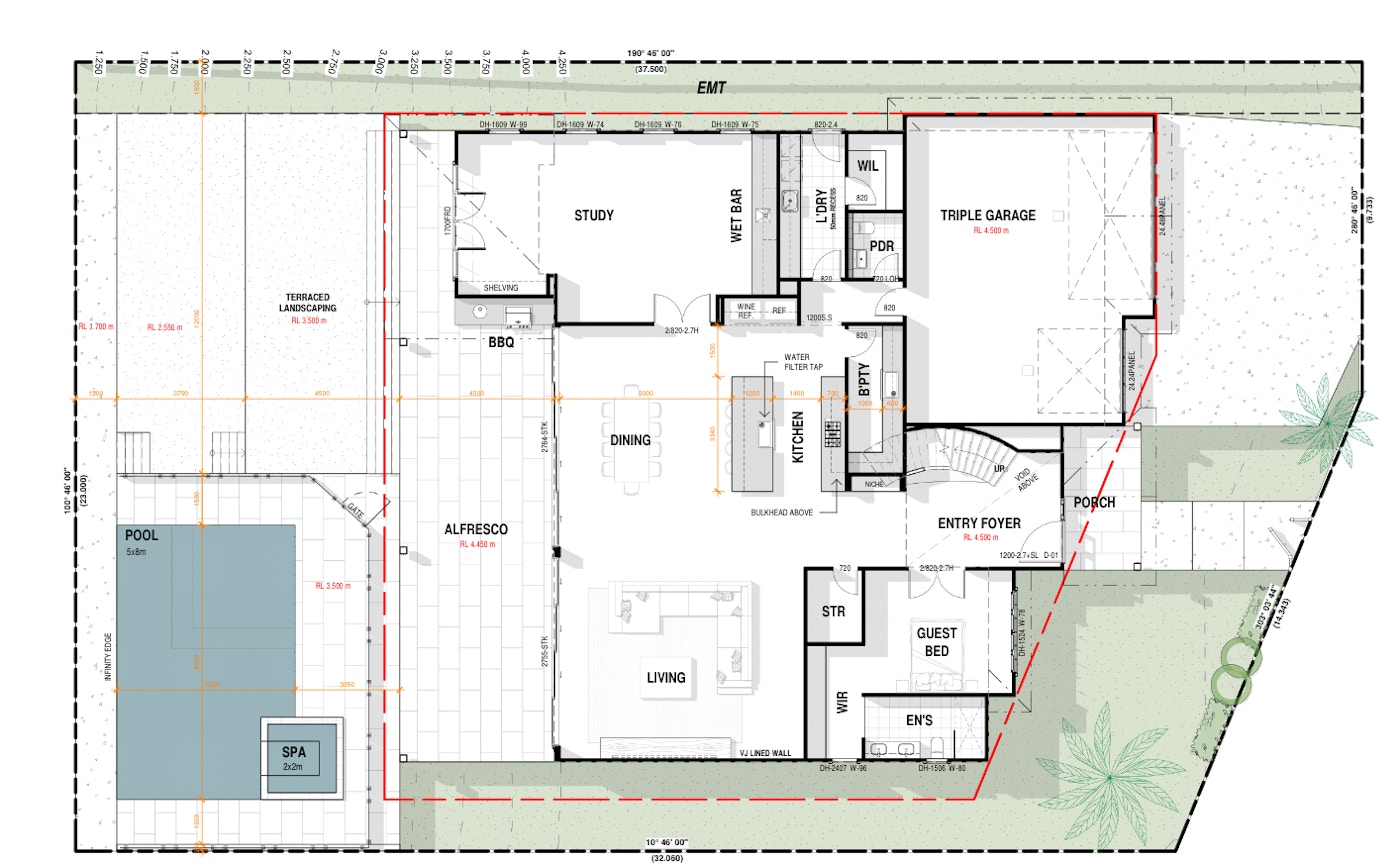
The McIlwain kit home is a spacious design offering five bedrooms and 4.5 bathrooms encompassing a total area of 642 square metres with 507 square metres of internal space and 135 square metres of external areas. Constructed with trusted BlueScope steel frames this home provides durability and modern aesthetics. The design includes expansive living areas well-appointed bedrooms and ample outdoor space making it ideal for families seeking comfort and style. With Australian-based support and guidance through council approvals building your dream home becomes a seamless experience.

Elevations

Drawings

Build Your Own Mcilwain Kit Home

5 Bed
4.5 Bath

Total Kit Size: 681m²

Internal: 575m²
External: 107m²
Dimensions: 22.1m × 18.9m
Trusted BlueScope Steel Frames
Step-by-step Guide to Get Started
Build on Your Schedule
Australian Based Support
We Ensure You Get Council Approval

Kit starts from:

A$472,570

Get Quote

Purchase Blueprint

Detailed construction PDF

Download the detailed construction blueprint PDF for this plan.

Blueprint price:

A$17.99

Customise Your Kit

Explore our premium options below and generate an instant PDF quote tailored to your specifications.

Floor System

This is the base for your kit. Concrete for the slab or footings is not included in the kit price.

▶️ Watch our video on sub floors

Ceiling Height

How high would you like your ceiling?

The average ceiling height is currently 2.7m. Higher ceilings add a sense of openness and luxury.

Cladding

What do you want to cover your walls?

▶️ Watch our video on cladding types

Get Your Quote

Sent straight to your inbox

Mcilwain

5 bed • 4.5 bath • 681m²

Standard kit price includes standard inclusions — add customisations below:

$0
$0
$0
$0
$0
Estimated Kit Cost inc. GST

$472,570 AUD

Slab/footings not included. Pricing shown is for Australia and includes GST.

Your Details

Related Kit Homes

These related plans have the same number of bedrooms and bathrooms as the plan you're looking at.