Skip to content
Miles - Per Unit
Images are for illustration purposes only and may not reflect standard inclusions.

Miles - Per Unit Kit Home

About this Kit

Note: Pricing is based on a single side for all Duplex designs.

Elevations

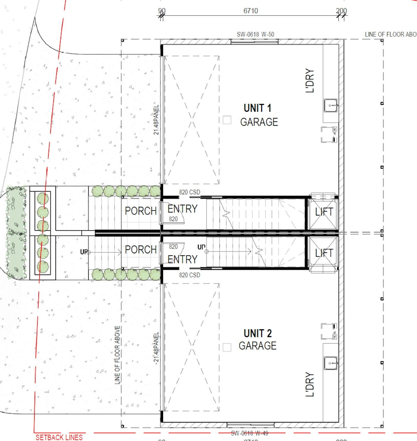
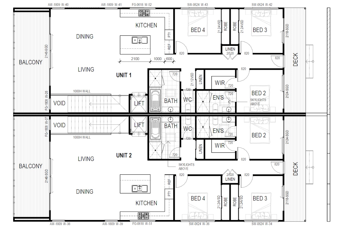
Drawings

Build Your Own Miles - Per Unit Kit Home

4 Bed
3.5 Bath

Total Kit Size: 274m²

Internal: 234m²
External: 40m²
Dimensions: 14.8m × 10.0m
Trusted BlueScope Steel Frames
Step-by-step Guide to Get Started
Build on Your Schedule
Australian Based Support
We Ensure You Get Council Approval

Kit starts from:

A$222,393

Get Quote

Customise Your Kit

Explore our premium options below and generate an instant PDF quote tailored to your specifications.

A Sub Floor system is included in the price of this kit due to the nature of the design.

Ceiling Height

How high would you like your ceiling?

The average ceiling height is currently 2.7m. Higher ceilings add a sense of openness and luxury.

Cladding

What do you want to cover your walls?

▶️ Watch our video on cladding types

Get Your Quote

Sent straight to your inbox

Miles - Per Unit

4 bed • 3.5 bath • 274m²

Standard kit price includes standard inclusions — add customisations below:

$0
$0
$0
$0
Estimated Kit Cost inc. GST

$222,393 AUD

Slab/footings not included. Pricing shown is for Australia and includes GST.

Your Details

Related Kit Homes

These related plans have the same number of bedrooms and bathrooms as the plan you're looking at.