Skip to content
Moreton
Images are for illustration purposes only and may not reflect standard inclusions.

Moreton Kit Home

About this Kit

The Moreton Kit Home is a modular style design featuring a modern open-plan living dining & kitchen area. Living areas are surrounded by a full length porch ideal for entertaining family & friends in the warmer months. Full height windows and doors run the length of the exterior allowing for plenty of natural light to enter the home.

Elevations

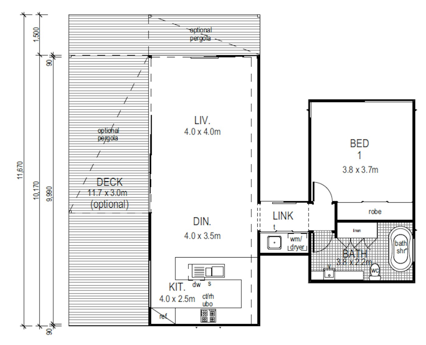
Drawings

Build Your Own Moreton Kit Home

1 Bed
1 Bath

Total Kit Size: 73m²

Internal: 73m²
External: 42m²
Dimensions: 13.0m × 11.7m
Trusted BlueScope Steel Frames
Step-by-step Guide to Get Started
Build on Your Schedule
Australian Based Support
We Ensure You Get Council Approval

Kit starts from:

A$72,063

Get Quote

Purchase Blueprint

Detailed construction PDF

Download the detailed construction blueprint PDF for this plan.

Blueprint price:

A$17.99

Customise Your Kit

Explore our premium options below and generate an instant PDF quote tailored to your specifications.

Floor System

This is the base for your kit. Concrete for the slab or footings is not included in the kit price.

▶️ Watch our video on sub floors

Ceiling Height

How high would you like your ceiling?

The average ceiling height is currently 2.7m. Higher ceilings add a sense of openness and luxury.

Cladding

What do you want to cover your walls?

▶️ Watch our video on cladding types

Get Your Quote

Sent straight to your inbox

Moreton

1 bed • 1 bath • 73m²

Standard kit price includes standard inclusions — add customisations below:

$0
$0
$0
$0
$0
Estimated Kit Cost inc. GST

$72,063 AUD

Slab/footings not included. Pricing shown is for Australia and includes GST.

Your Details

Related Kit Homes

These related plans have the same number of bedrooms and bathrooms as the plan you're looking at.