Skip to content
Platinum
Images are for illustration purposes only and may not reflect standard inclusions.

Platinum Kit Home

About this Kit

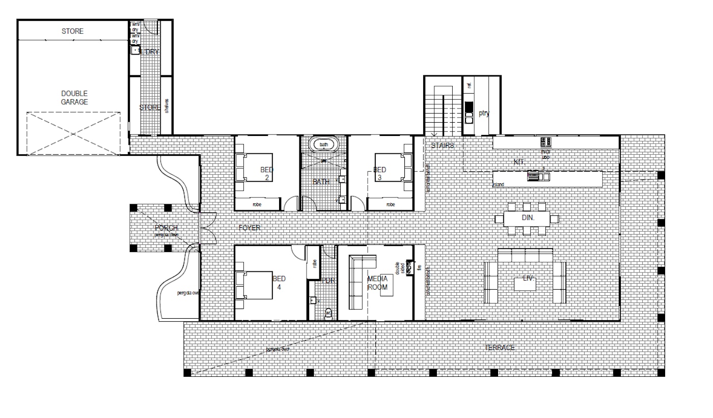
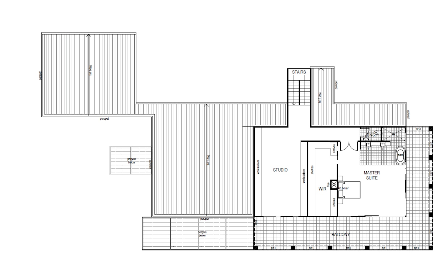
You will feel like a rock star with a Platinum home. Boasting 4 bedrooms 1.5 bathrooms striking kitchen/living/dining media room upstairs studio space 180-degree terrace for entertaining guests – this modern marvel is simply off the charts.

Elevations

Drawings

Build Your Own Platinum Kit Home

2 Bed
2 Bath

Total Kit Size: 638m²

Internal: 463m²
External: 101m²
Dimensions: 33.0m × 19.6m
Trusted BlueScope Steel Frames
Step-by-step Guide to Get Started
Build on Your Schedule
Australian Based Support
We Ensure You Get Council Approval

Kit starts from:

A$451,758

Get Quote

Purchase Blueprint

Detailed construction PDF

Download the detailed construction blueprint PDF for this plan.

Blueprint price:

A$17.99

Customise Your Kit

Explore our premium options below and generate an instant PDF quote tailored to your specifications.

Floor System

This is the base for your kit. Concrete for the slab or footings is not included in the kit price.

▶️ Watch our video on sub floors

Ceiling Height

How high would you like your ceiling?

The average ceiling height is currently 2.7m. Higher ceilings add a sense of openness and luxury.

Cladding

What do you want to cover your walls?

▶️ Watch our video on cladding types

Get Your Quote

Sent straight to your inbox

Platinum

2 bed • 2 bath • 638m²

Standard kit price includes standard inclusions — add customisations below:

$0
$0
$0
$0
$0
Estimated Kit Cost inc. GST

$451,758 AUD

Slab/footings not included. Pricing shown is for Australia and includes GST.

Your Details

Related Kit Homes

These related plans have the same number of bedrooms and bathrooms as the plan you're looking at.