Skip to content
Spur
Images are for illustration purposes only and may not reflect standard inclusions.

Spur Kit Home

About this Kit

The Spur is a 5 bedroom, 5 bathroom kit home with 548m² of total living space. Built with premium BlueScope TRUECORE® steel frames for durability and peace of mind.

Elevations

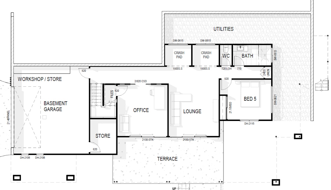
Drawings

Build Your Own Spur Kit Home

5 Bed
5 Bath

Total Kit Size: 548m²

Internal: 470m²
External: 78m²
Dimensions: 24.1m × 19.4m
Trusted BlueScope Steel Frames
Step-by-step Guide to Get Started
Build on Your Schedule
Australian Based Support
We Ensure You Get Council Approval

Kit starts from:

A$416,110

Get Quote

Customise Your Kit

Explore our premium options below and generate an instant PDF quote tailored to your specifications.

A Sub Floor system is included in the price of this kit due to the nature of the design.

Ceiling Height

How high would you like your ceiling?

The average ceiling height is currently 2.7m. Higher ceilings add a sense of openness and luxury.

Cladding

What do you want to cover your walls?

▶️ Watch our video on cladding types

Get Your Quote

Sent straight to your inbox

Spur

5 bed • 5 bath • 548m²

Standard kit price includes standard inclusions — add customisations below:

$0
$0
$0
$0
Estimated Kit Cost inc. GST

$416,110 AUD

Slab/footings not included. Pricing shown is for Australia and includes GST.

Your Details

Related Kit Homes

These related plans have the same number of bedrooms and bathrooms as the plan you're looking at.