Skip to content
ST ANDREWS
Images are for illustration purposes only and may not reflect standard inclusions.

ST ANDREWS Kit Home

About this Kit

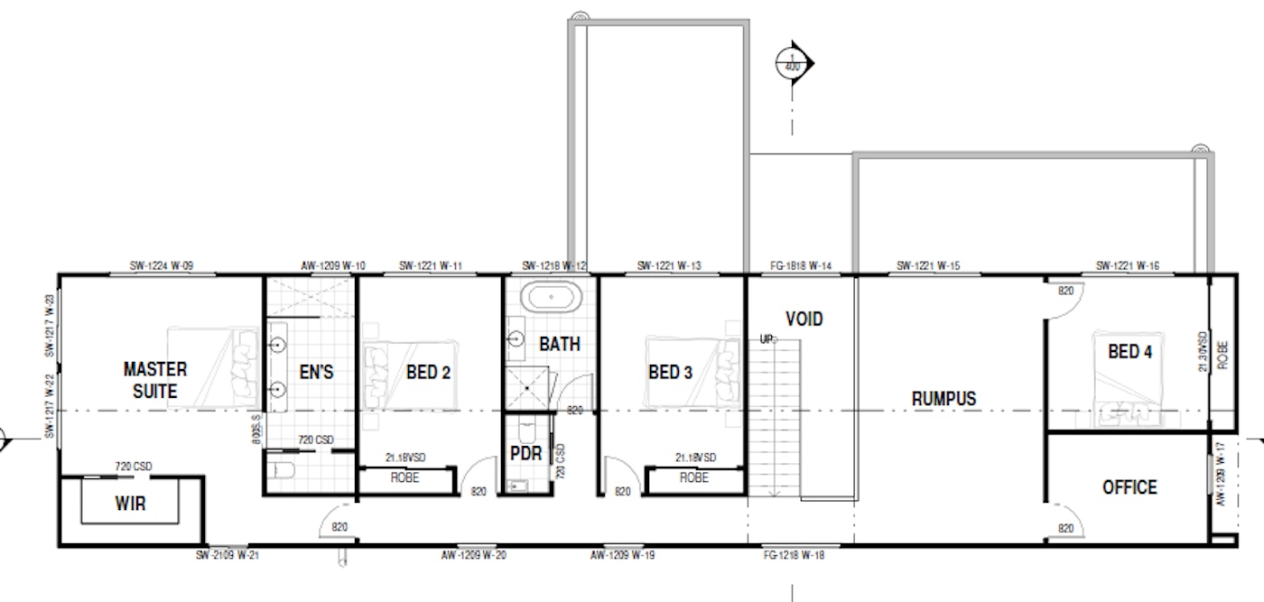
The ST ANDREWS is a 4 bedroom, 2.5 bathroom kit home with 377m² of total living space. Built with premium BlueScope TRUECORE® steel frames for durability and peace of mind.

Elevations

Drawings

Build Your Own ST ANDREWS Kit Home

4 Bed
2.5 Bath

Total Kit Size: 377m²

Internal: 374m²
External: 3m²
Dimensions: 26.6m × 11.8m
Trusted BlueScope Steel Frames
Step-by-step Guide to Get Started
Build on Your Schedule
Australian Based Support
We Ensure You Get Council Approval

Kit starts from:

A$317,211

Get Quote

Purchase Blueprint

Detailed construction PDF

Download the detailed construction blueprint PDF for this plan.

Blueprint price:

A$17.99

Customise Your Kit

Explore our premium options below and generate an instant PDF quote tailored to your specifications.

Floor System

This is the base for your kit. Concrete for the slab or footings is not included in the kit price.

▶️ Watch our video on sub floors

Ceiling Height

How high would you like your ceiling?

The average ceiling height is currently 2.7m. Higher ceilings add a sense of openness and luxury.

Cladding

What do you want to cover your walls?

▶️ Watch our video on cladding types

Get Your Quote

Sent straight to your inbox

ST ANDREWS

4 bed • 2.5 bath • 377m²

Standard kit price includes standard inclusions — add customisations below:

$0
$0
$0
$0
$0
Estimated Kit Cost inc. GST

$317,211 AUD

Slab/footings not included. Pricing shown is for Australia and includes GST.

Your Details

Related Kit Homes

These related plans have the same number of bedrooms and bathrooms as the plan you're looking at.