Skip to content
Wallace
Images are for illustration purposes only and may not reflect standard inclusions.

Wallace Kit Home

About this Kit

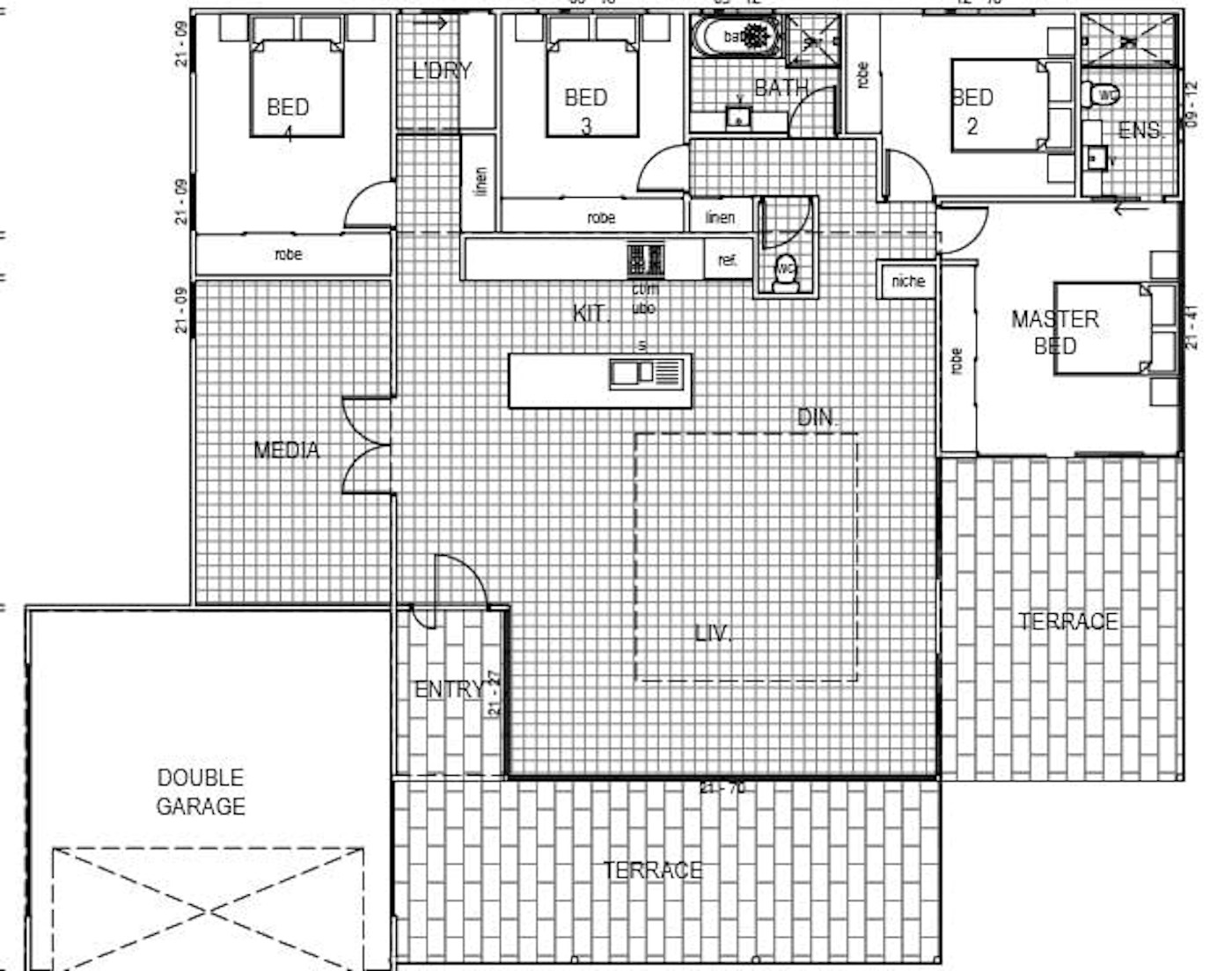
Your single-level haven the Wallace from Imagine provides luxurious indoor / outdoor living with double terraces in a clever spacious refined 4-bedroom 2-bathroom home of 229m2. Generous double garaging. Enjoy the large open-plan living with kitchen island bench. Luxuriate in the separate media room for rich family times. Live the life of the elite in the Wallace.

Elevations

Drawings

Build Your Own Wallace Kit Home

4 Bed
2 Bath

Total Kit Size: 232m²

Internal: 207m²
External: 25m²
Dimensions: 19.0m × 15.9m
Trusted BlueScope Steel Frames
Step-by-step Guide to Get Started
Build on Your Schedule
Australian Based Support
We Ensure You Get Council Approval

Kit starts from:

A$171,764

Get Quote

Purchase Blueprint

Detailed construction PDF

Download the detailed construction blueprint PDF for this plan.

Blueprint price:

A$17.99

Customise Your Kit

Explore our premium options below and generate an instant PDF quote tailored to your specifications.

Floor System

This is the base for your kit. Concrete for the slab or footings is not included in the kit price.

▶️ Watch our video on sub floors

Ceiling Height

How high would you like your ceiling?

The average ceiling height is currently 2.7m. Higher ceilings add a sense of openness and luxury.

Cladding

What do you want to cover your walls?

▶️ Watch our video on cladding types

Get Your Quote

Sent straight to your inbox

Wallace

4 bed • 2 bath • 232m²

Standard kit price includes standard inclusions — add customisations below:

$0
$0
$0
$0
$0
Estimated Kit Cost inc. GST

$171,764 AUD

Slab/footings not included. Pricing shown is for Australia and includes GST.

Your Details

Related Kit Homes

These related plans have the same number of bedrooms and bathrooms as the plan you're looking at.